刈谷一色ビル

39.20万円 (1.1万円~4万円/坪) 管理/共益費 106,887円~1,168,101円

愛知県刈谷市一色町3丁目8-19

名鉄三河線「重原」駅徒歩11分

東海道本線「刈谷」駅徒歩15分

東海道本線「野田新町」駅徒歩27分

価格
39.20万円(1.1万円~4万円/坪) 管理/共益費 106,887円~1,168,101円
面積
22.84坪~354.64坪(75.53㎡~1172.37㎡)
所在地
愛知県刈谷市一色町3丁目8-19
築年
2026年1月(予定)
駐車
空有(50台)
交通

名鉄三河線重原」駅 徒歩11分

東海道本線刈谷」駅 徒歩15分

東海道本線野田新町」駅 徒歩27分

刈谷一色ビルの基本情報

物件名
刈谷一色ビル
価格
39.20万円(1.1万円~4万円/坪)
管理/共益費
106,887円~1,168,101円
築年月
2026年1月(予定)
所在地
愛知県刈谷市一色町3丁目8-19
交通

名鉄三河線重原」駅 徒歩11分

東海道本線刈谷」駅 徒歩15分

東海道本線野田新町」駅 徒歩27分

刈谷一色ビルの詳細情報

設備条件
駐車場/月額
空有(50台)/7,150円 敷地内駐車場・敷地外専用駐車場(60m)/空き50台/6,050円~7,150円(税込)
用途地域
準工業
取引態様
一般媒介

刈谷一色ビルで募集中の物件

  1. ワンフロア

    22.84坪 (75.53㎡)

    91.40万円(4万円/坪)

  2. 1棟

    354.64坪 (1172.37㎡)

    389.37万円(1.1万円/坪)

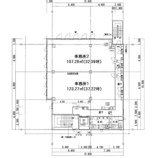
  3. 2-2

    32.45坪 (107.28㎡)

    39.20万円(1.21万円/坪)

  4. 2-1

    37.28坪 (123.27㎡)

    45.04万円(1.21万円/坪)

  5. 3-1

    37.28坪 (123.27㎡)

    45.04万円(1.21万円/坪)

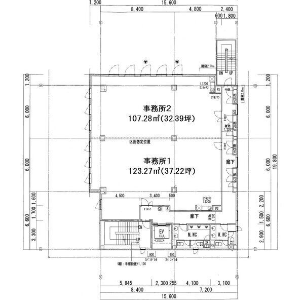
  6. 4-2

    32.45坪 (107.28㎡)

    39.20万円(1.21万円/坪)

  7. 4-1

    37.28坪 (123.27㎡)

    45.04万円(1.21万円/坪)

  8. 5-2

    32.45坪 (107.28㎡)

    39.20万円(1.21万円/坪)

  9. 5-1

    37.28坪 (123.27㎡)

    45.04万円(1.21万円/坪)

近隣の物件

  1. 刈谷市銀座3丁目

    - (417.66㎡)

    100.07万円(0.79万円/坪)

  2. 刈谷市南桜町2丁目

    - (48.22㎡)

    7.7万円(0.53万円/坪)

  3. 刈谷市相生町2丁目

    - (107.66㎡)

    50.16万円(1.54万円/坪)

  4. 刈谷市桜町2丁目

    - (46.80㎡)

    19.8万円(1.4万円/坪)

刈谷一色ビル

お気軽にお問い合わせください

無料お問い合わせ

TENPOUP 岡崎店

0564-83-8918

9:00~19:00

(休:第2、3土曜日 日曜日)